Projet 6 [2022] – Réhabilitation d’une ruine agricole en atelier de travail (24).

Projet 5 [2021-22] – La restauration d’une longère en Dordogne (24).
Projet 4 [2010] – Un programme multifonctionnel (logements, gymnase et médiathèque) à Pantin (93).
Projet 3 [2009] – Une ferme expérimentale et pédagogique à Belle-Île-En-Mer.
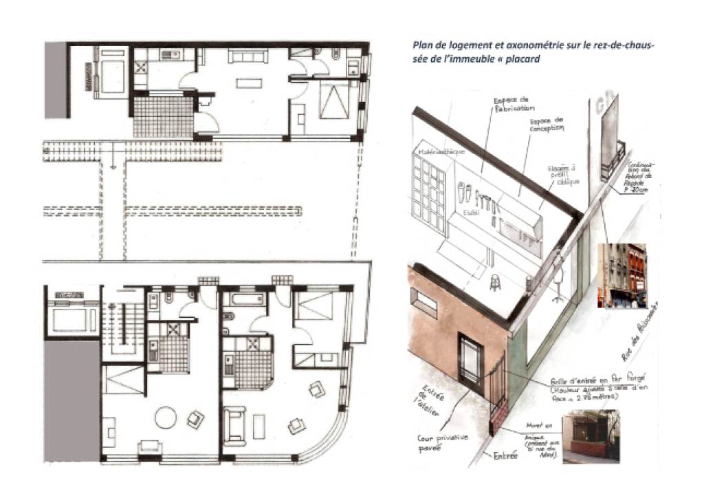
Projet 2 [2007] – Des immeubles communicants à Paris 18e.
Projet 1 [2007] – Projet Atelier Ezio FRIGERIO.
Me contacter ou me suivre sur les réseaux sociaux professionnels :





















































































